
ТехПлан CAD
- Рейтинг: 4,3 (11 оценок)
- Скачиваний: 3 тыс +
- Размер: 23.7 MB
- Возраст: 0+
Скриншоты




Описание приложения
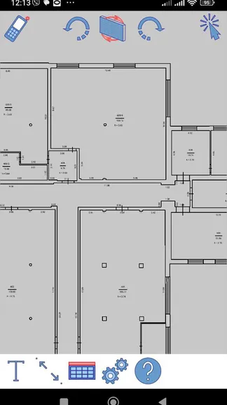
ТехПлан САD - приложение для обмеров помещений, которое ускоряет получение поэтажных планов в 5-6 раз. Эффективность приложения достигается за счёт следующих преимуществ: 1. Подключение дальномера по Bluetooth, автоматическая передача замеров; 2. Алгоритмы обмеров даже самых сложных помещений (включая круглые стены); 3. Расчёт площадей помещений и стен; 4. Расположение окон, дверей, колонн, лестниц и других объектов на плане; 5. Все ошибки выявляются в процессе замера, таким образом исключаются повторные выезды; 6. Расстановка размеров и подписей, указание материала стен; 7. Получение готового плана в растре (JPG) и векторе (DXF); 8. Формирование экспликации в формате Excell; 9. Обучение работе занимает от 2 до 6 часов.
Описание приложения
ТехПлан САD - приложение для обмеров помещений, которое ускоряет получение поэтажных планов в 5-6 раз. Эффективность приложения достигается за счёт следующих преимуществ: 1. Подключение дальномера по Bluetooth, автоматическая передача замеров; 2. Алгоритмы обмеров даже самых сложных помещений (включая круглые стены); 3. Расчёт площадей помещений и стен; 4. Расположение окон, дверей, колонн, лестниц и других объектов на плане; 5. Все ошибки выявляются в процессе замера, таким образом исключаются повторные выезды; 6. Расстановка размеров и подписей, указание материала стен; 7. Получение готового плана в растре (JPG) и векторе (DXF); 8. Формирование экспликации в формате Excell; 9. Обучение работе занимает от 2 до 6 часов.
Оценки и отзывы
Не могу зарегистрироваться, не приходит на почту сообщение, а в тестовом режиме программа супер
приложение требует для установки слишком разрешений, доступ ко всем файлам с правом их удалять без уведомления, доступ к видео и фото, к местоположению ??? зачем??? это не графический редактор, а шпионская прога какая-то.
Варвара, здравствуйте. Приложение сохраняет чертежи в файловую систему, для этого нужен доступ к диску. Так же в приложении реализована функция прикрепления фотографий с нанесением размеров в свойствах объектов чертежа, для этого нужен доступ к камере. Приложение запрашивает минимальные, необходимые для работы, разрешения. Вы можете не предоставлять их, тогда просто часть функций будет недоступна.
отличное приложение. уже не представляю работу без него.
К сожалению не работает с Leica disto x4. Соединение происходит, но размеры не передаются. Для объектов на плане можно добавлять фото. Хорошо бы их тоже добавлять в при сохранении проекта. Да и высоты объектов из проекта как то вывести. Приложение классное!
Отличное приложение. Оперативно работает обратная связь. Реально помогает. Несколько лет уже пользуемся. Даже ждём новых заказов для обмера дома. чтобы снова использовать приложение Техплан.
Благодарим за положительный отзыв и многолетнее сотрудничество. Успехов!
Что нового
Версия: 1.9
Дата: 23 нояб 2025
Приложение адаптировано под современные платформы, повышена стабильность.
История версийРазработчик
Коновалов Павел ВладимировичВозможно, вам понравится
ВТБ Онлайн
ВТБ Онлайн – в лидерах среди онлайн-банков по версии Markswebb
Яндекс Про: водители и курьеры
Водитель такси, автокурьер и доставка
Ozon Job
Ozon Job — ваш дополнительный источник дохода!
СберБизнес
СберБизнес для юр.лиц
WB Job
WB Job- помощник сотрудников и соискателей.
Битрикс24 для работы и бизнеса
CRM, видеозвонки, чаты, задачи
Т-Бизнес
Онлайн банк
Taxsee Driver – работа в такси
Выполняй заказы такси, доставку. Вывод безнала через СБП, без комиссии
Яндекс Смена
Яндекс Смена | Поиск подработки
YPLACES — онлайн-запись
Онлайн-запись и оплата услуг
ZArchiver
Простая работа с архивами 7zip, zip, ...
Kadastr RU
Кадастровая карта, ПКК
Садовод — Агрегатор
Агрегатор — Садовод — все поставщики из открытых источников в одном месте!
Ozon Seller
Управляйте бизнесом с телефона.
АТИ Грузы и Транспорт
Крупнейшая Биржа грузоперевозок РФ и СНГ
Бизнес Платформа ВТБ
Банк там, где удобно вашему делу
АтомЭнергоСбыт
Оплата электроэнергии прямо с мобильного телефона
Достависта — работа курьером
Подработка курьером с ежедневной оплатой до 5460 руб. Скачайте приложение.
Что нового
Версия: 1.9
Дата: 23 нояб 2025
Приложение адаптировано под современные платформы, повышена стабильность.
История версий